復興段一小段鳳凰大廈
台北市大安區復興段一小段675號等2筆土地都市更新案
- 年期 目前正在整合中
- 目前進度 意願表態過70%
- 地址 台北市大安區敦化南路一段11號、15號等

- 實施者 惇陽都更服務股份有限公司
- 更新規劃
- 建築設計 三門聯合建築師事務所
- 鑑價機構 連邦不動產估價師聯合事務所
- 其他合作單位
- 單元範圍 大安區復興段一小段675號等2筆土地
- 面積(m2) 1275.94
- 使用分區 商2、住4、住4-1
- 實施方式 代理實施
- 更新地區 自行劃定更新單元
案件消息
更新前
地上物
說明
區內有2棟建築物為鋼筋混泥土建造,分別為12層建物及2層建物,2棟建物屋齡均超過30年以上。

產權狀況
說明
(一)土地權屬:更新單元範圍內共計2筆土地,面積1,275.94平方公尺,土地所有權66人;範圍內涵私有土地、銀行法人土地。
(二)合法建物權屬:更新單元範圍內計有2棟合法建築物,建物謄本面積共9,071.21平方公尺,建物所有權84人。

容積
說明
| 項目 | 面積(m2) | 百分比(%) | 說明 |
|---|---|---|---|
| 申請容積獎勵總計: | 15,599.93 | 104.23% | |
| 其他容積獎勵: | 2,291.14 | 30.00% | 防災型都更獎勵 |
| 原容積: | |||
| 法定容積: | |||
| 容積移轉: | |||
| 總計: | 17,891.07 | 134.23% |
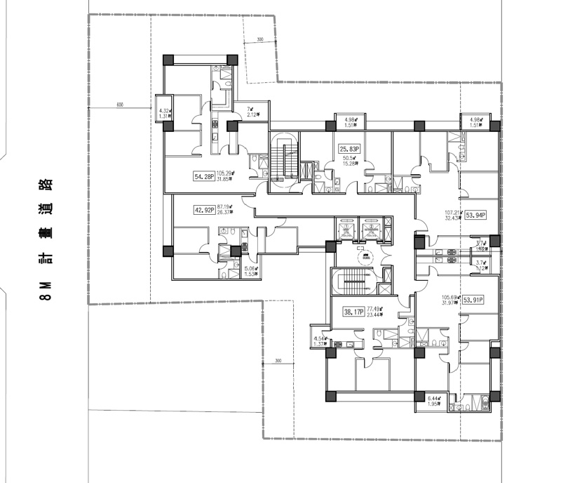
規劃
各層平面
說明
本案擬規劃興建RC結構三級,分別為地上24層,地下6層,約148戶,並設置76席汽車停車位及118席機車停車位。

立剖面及透視
說明
暫無圖片
財務
說明
| 項目 | 金額(億元) |
|---|---|
| 容原積: | |
| 更新前價值: | |
| 更新後價值: | 86.60 |
| 共同負擔或更新成本: | 30.30 |
| 實施者分回: | 0 |
| 地主分回: | 53.30 |