敦北香榭都更案
臺北市松山區敦化段一小段545地號等1筆土地更新案
- 年期 目前正在整合中
- 目前進度 同意比達40%
- 地址 松山區南京東路三段303巷14弄6~8號南京東路三段335巷13~19號。

- 實施者 惇陽都更服務股份有限公司
- 更新規劃 十久健都市再生規劃有限公司
- 建築設計 三門聯合建築師事務所
- 鑑價機構 連邦不動產估價師聯合事務所
- 其他合作單位
- 單元範圍 松山區敦化段一小段545地號1筆土地
- 面積(m2) 1,042
- 使用分區 第三種住宅區
- 實施方式 代理實施
- 更新地區 自行劃定更新單元
案件消息
暫無消息
更新前
地上物
說明
區內有1棟建築物為鋼筋混泥土建造,為屋齡超過30年以上之建築。

產權狀況
說明
(一)土地權屬:更新單元範圍內共計1筆土地,面積1,042平方公尺,土地所有權144人;範圍內均為私有土地。
(二)合法建物權屬:更新單元範圍內計有1棟合法建築物,建物謄本面積共6,977.51平方公尺,建物所有權144人。

容積
說明
| 項目 | 面積(m2) | 百分比(%) | 說明 |
|---|---|---|---|
| 申請容積獎勵總計: | 12,485.11 | 115.25% | |
| 其他容積獎勵: | 1,739.96 | 30.00% | 海砂屋獎勵 |
| 原容積: | |||
| 法定容積: | |||
| 容積移轉: | |||
| 總計: | 14,225.07 | 145.25% |
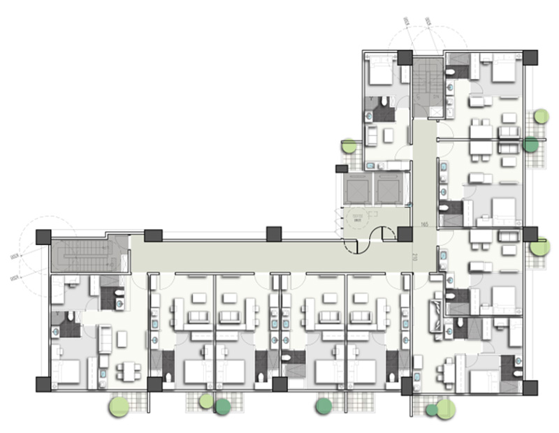
規劃
各層平面
說明
本案擬規劃興建RC結構三級,分別為地上15層,地下4層,約140戶,並設置44席汽車停車位及66席機車停車位。

立剖面及透視
說明

財務
說明
| 項目 | 金額(億元) |
|---|---|
| 容原積: | |
| 更新前價值: | 約23.21 |
| 更新後價值: | 88.60 |
| 共同負擔或更新成本: | 32.40 |
| 實施者分回: | 0 |
| 地主分回: | 56.20 |